Zorza

Kompaktowy ale przestronny

 Idealny by pomieścić, wszystko czego potrzebujesz.

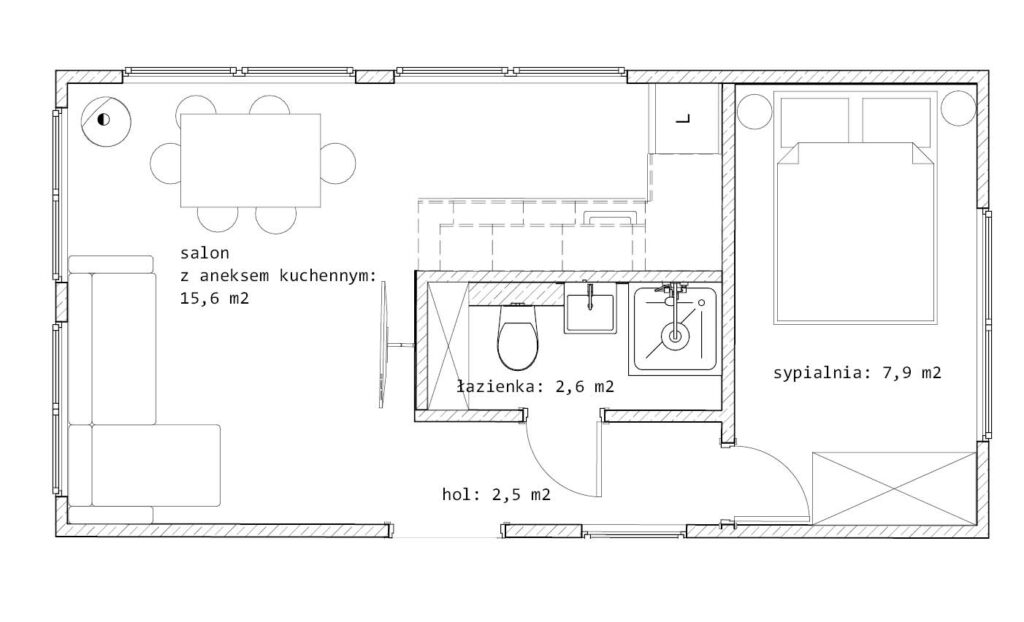
Propozycja układu
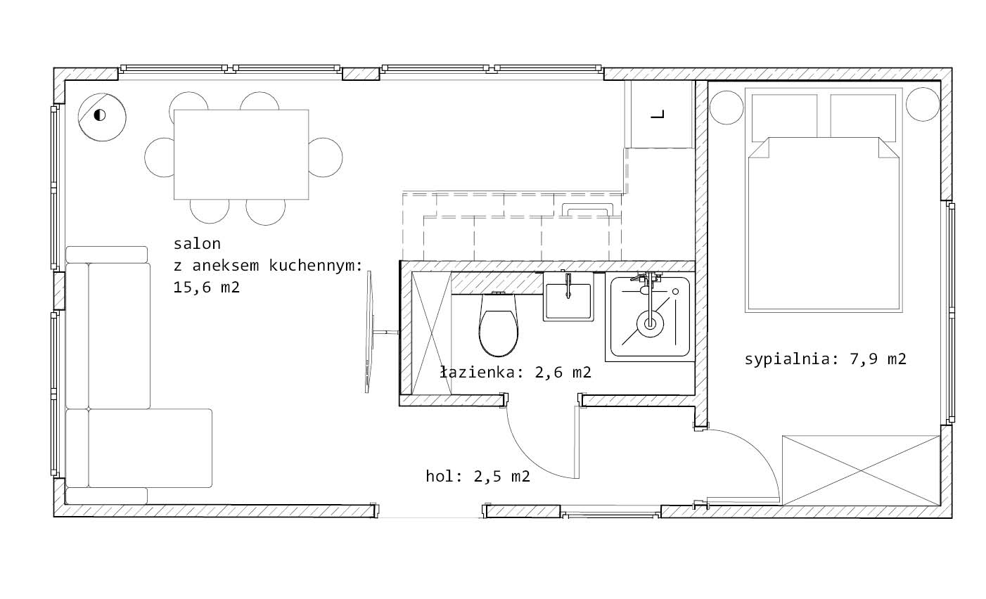
Propozycja układu

Domek mobilny Zorza o powierzchni 28 m² to nieco większa wersja kompaktowego domu, która oferuje więcej przestrzeni i wygody. Wyposażony w jedną sypialnię, zapewnia komfortowe warunki do życia dla 2 osób.

Dodatkowo w przestronniejszej strefie dziennej znajduje się miejsce na rozkładaną sofę, co pozwala na nocleg dla kolejnych 1–2 osób – idealne rozwiązanie dla pary z dzieckiem lub gośćmi. Układ wnętrza obejmuje funkcjonalny aneks kuchenny, łazienkę z prysznicem oraz część dzienną, która dzięki większej powierzchni daje poczucie swobody i komfortu. To doskonała propozycja dla osób szukających mobilnego domu z większą ilością miejsca do codziennego życia.

m2
0
osoby
0
kg co2
0

Chętnie odpowiemy
na Twoje pytania!