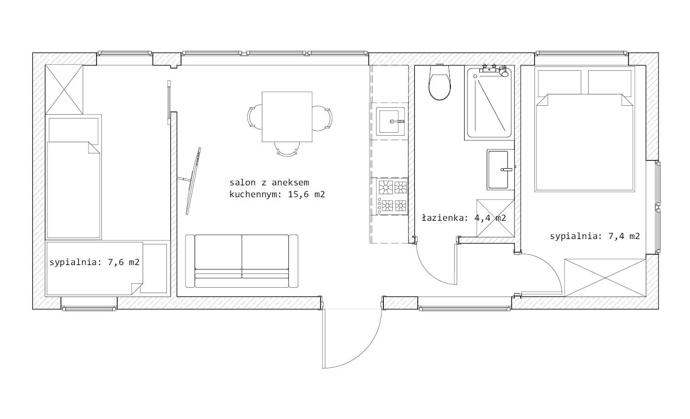
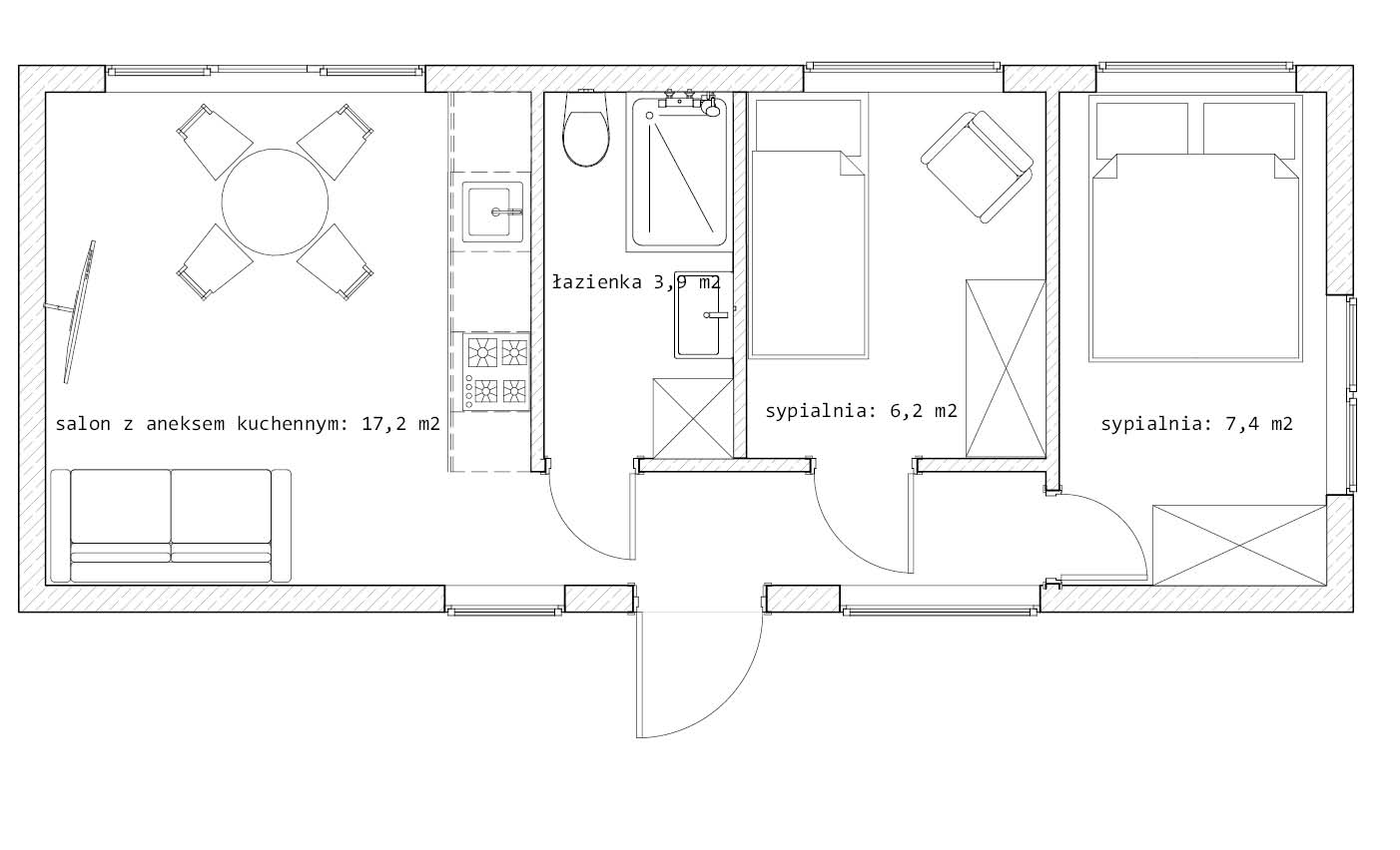
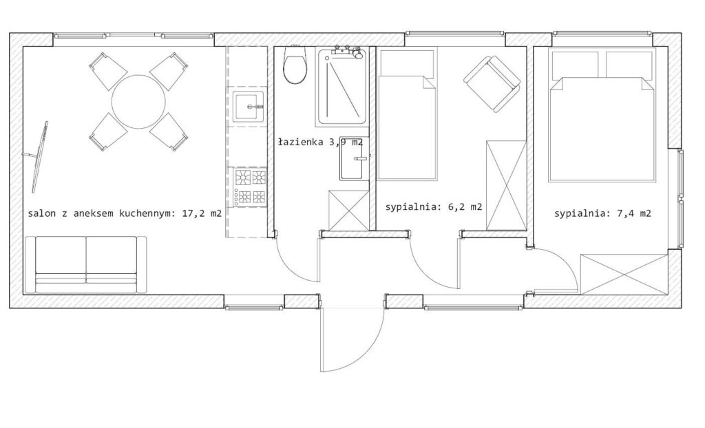
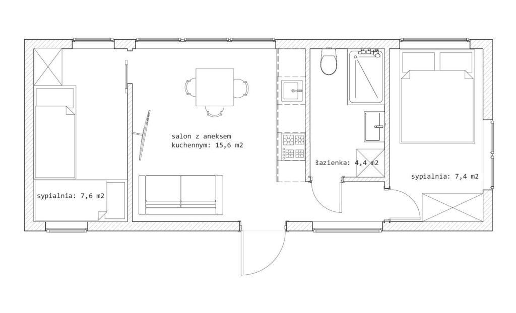
Domek mobilny Harmonia o powierzchni 35 m² z dwiema sypialniami to komfortowa opcja dla rodzin lub grupy znajomych. Przestrzeń została zaprojektowana z myślą o wygodnym zamieszkaniu nawet 4–6 osób.
Dwie oddzielne sypialnie zapewniają prywatność i wygodę, a dodatkowe miejsca do spania, np. na rozkładanej sofie w salonie, umożliwiają elastyczne dostosowanie wnętrza do potrzeb gości. W domku znajduje się również w pełni wyposażony aneks kuchenny, funkcjonalna łazienka oraz jasna strefa dzienna sprzyjająca wspólnemu spędzaniu czasu. To idealne rozwiązanie dla tych, którzy cenią sobie wygodę, funkcjonalność i domową atmosferę – nawet na niewielkiej przestrzeni.